Voorwandinstallatieset, closet, closetzitting en bedieningsplaat
Bevat
- Geberit Duofix voorwandinstallatiemodule (111.300.00.5), met Sigma inbouwreservoir 12 cm
- set voor geluiddemping (SP 156SET)
- Duravit ME by Starck keramisch wandcloset, inclusief closetzitting (45290900A1)
- Rimless randloze spoeling
- DuraFix verborgen closetbevestiging
- SoftClose langzame sluiting
- roestvrijstalen scharnieren
- Geberit Sigma01 dual flush bedieningsplaat, alpine wit (115.770.11.5)
Product van topkwaliteit met stille werking. Flexibel ontwerp, snelle en eenvoudige installatie.
Deze installatieset is ook verkrijgbaar met andere uitvoeringsvarianten van de bedieningsplaat.
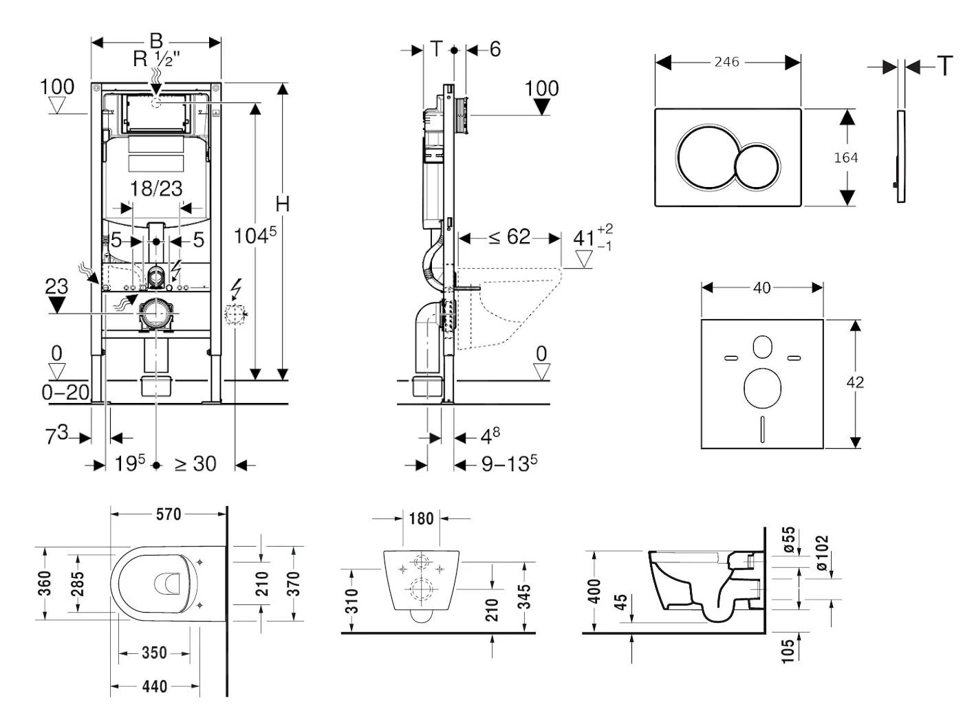
Geberit Kombifix montage-element voor wandclosets, met Sigma inbouwreservoir 12 cm
Universeel en snel bruikbaar montage-element voor alle oplossingen op het gebied van droogbouw. Voldoet in grote mate aan de strengste eisen aan geluidsbescherming en brandveiligheid. Geberit Duofix is bestemd voor montage in lichte gipsplaatwanden of voor installatie aan een gemetselde wand. De montage van het element is buitengewoon snel, met gebruikmaking van slechts vier bevestigingspunten.
Gebruiksdoel
- voor droogbouwconstructies
- voor montage in deelhoge of ruimtehoge voorwandinstallaties
- voor montage in ruimtehoge installatiewanden
- voor montage in deelhoge of ruimtehoge Geberit Duofix systeemwanden
- voor een wandcloset met aansluitmaten conform EN 33:2011
- voor wandcloset met voorsprong tot 62 cm
- voor single flush, dual flush of Start/Stop spoeling
- voor een vloerdikte van 0-20 cm
Kenmerken
- zelfdragend frame, gepoedercoat
- frame met geboorde openingen ø 9 mm voor bevestiging in houten constructies
- frame bestemd en gereed voor steunen bij wc-keramiek met een klein steunoppervlak
- verzinkte steunen
- steunen verstelbaar 0-20 cm
- steunen met antisliplaag
- draaibare voetplaten
- diepte van de voetplaat is geschikt voor montage in UW 50 en UW 75 U-profielen en Geberit Duofix systeemprofielen
- aansluitbocht voor montage zonder gereedschap in verschillende dieptes, instelbereik 45 mm
- bevestiging van de aansluitbocht, geluidsgeïsoleerd
- inbouwreservoir met frontbediening
- inbouwreservoir, geïsoleerd tegen condens
- fabrieksinstelling maakt direct naspoelen mogelijk
- montage- en onderhoudswerkzaamheden aan inbouwreservoir zonder gereedschap
- wateraansluiting achter of boven in het midden
- sparingkoker beschermt service-opening tegen vocht en vuil
- sparingkoker voor service-opening, inkortbaar
- uitgerust met mantelbuis voor toevoerleiding voor de aansluiting van Geberit AquaClean douche-wc’s
- met bevestigingsmogelijkheid voor elektriciteitsaansluiting
Technische gegevens
- stromingsdruk: 10-1000 kPa
- maximale watertemperatuur: 25°C
- spoelvolume, ingesteld in de fabriek: 6 en 3 l
- groot spoelvolume, instelbereik: 4,5 / 6 / 7,5 l
- klein spoelvolume, instelbereik: 3-4 l
- berekend doorstromingsvolume: 0,11 l/s
- minimale overdruk voor berekend doorstromingsvolume: 50 kPa
De verpakking bevat
- wateraansluiting R 1/2” geschikt voor MF, met geïntegreerde hoekstopkraan en handwiel
- sparingkoker voor service-opening
- 2 beschermdoppen
- aansluitset voor wc, Ø 90 mm
- aansluitbocht 90°, van PE-HD, Ø 90 mm
- overgangsmof van PE-HD, Ø 90/110 mm
- 2 draadstangen M12
- bevestigingsmateriaal
Geluidsisolatieset voor wandcloset
- voor montage van sanitair met bevestigingsafstand van 18 cm of 23 cm
- verhindert geluidsoverdracht bij closet en bidet
- materiaal: polyethyleenschuim
- 1x geluidsisolerende mat
- 2x onderlegplaatje
ME by Starck wandcloset, met diepspoel en SoftClose zitting
- afmetingen: 370 x 570 mm
- materiaal: sanitairkeramiek
- spoelvolume: 4,5 l
- Rimless randloze uitvoering
- achterafvoer
- installatie: wandmontage door ophangen
- DuraFix set voor verborgen bevestiging van het closet
- Closetzitting met SoftClose functie voor langzame sluiting
- afneembaar, met scharnieren van roestvrij staal
- materiaal: kunststof, kleur alpine wit
Sigma01 bedieningsplaat, voor dual flush spoeling
- voor de bediening van Geberit Delta inbouwreservoirs
- frontbediening
- geluiddempende drukstiften, snelle instelling zonder gereedschap
- afmetingen: 246 x 164 mm
- materiaal: kunststof
- kleur: alpine wit
- bedieningskracht: < 20 N
- bevestigingsframe
- 2 afstandhouders
- 2 drukstiften
Dit product kan bij u zonder originele verpakking geleverd worden. De reden is bescherming van product tegen eventuele schade tijdens transport.





























Beoordelingen
Er zijn nog geen beoordelingen.